Appartamento Terzo Piano Ristrutturato

In vendita
Appartamento
Auronzo di Cadore (Villapiccola)
Descrizione
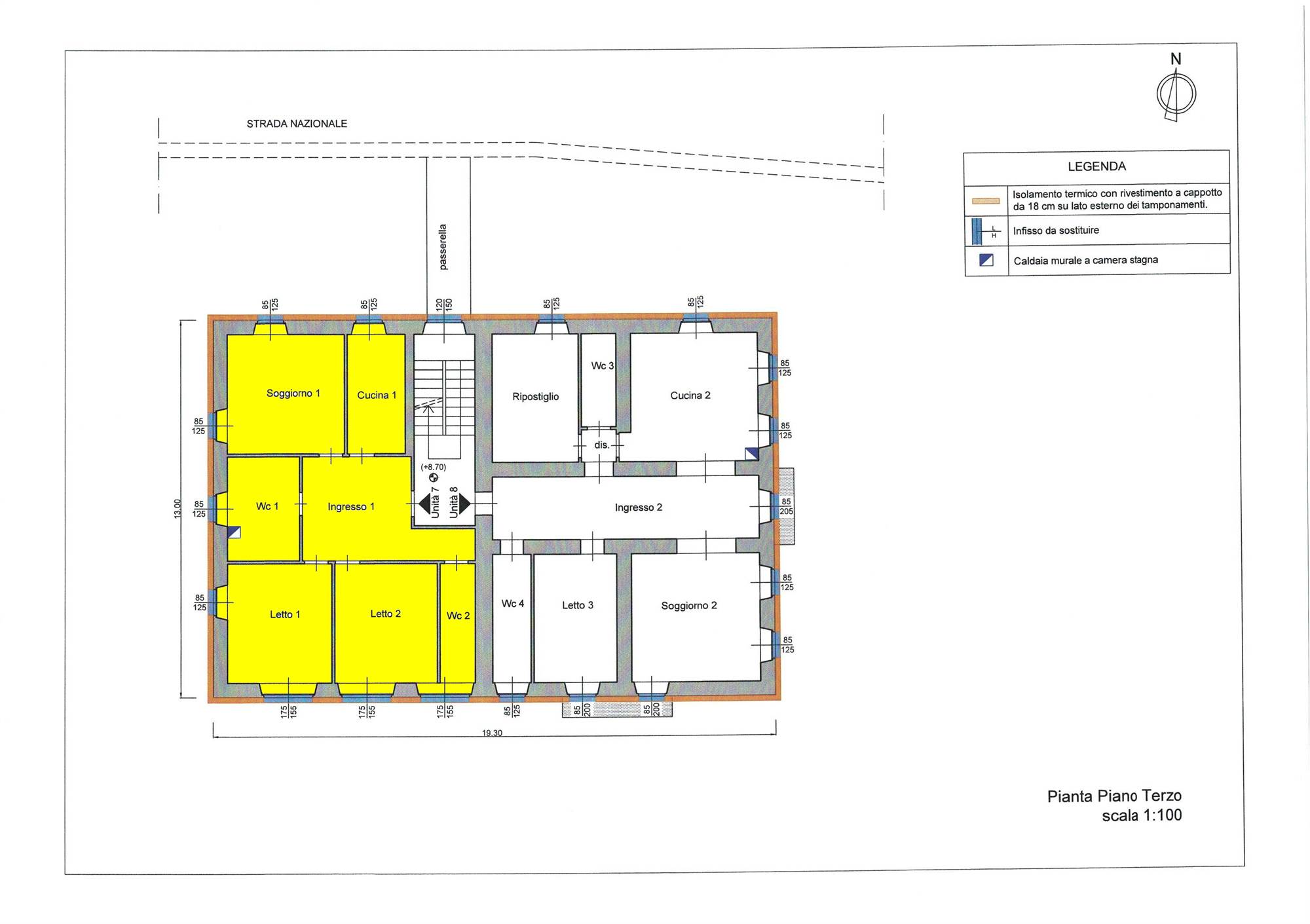
Proponiamo in vendita un luminoso appartamento situato al terzo piano di un condominio degli anni ’80, ben tenuto e inserito in una zona tranquilla e panoramica.
L’immobile, con esposizione sud/ovest/nord, è composto da ingresso, ampio soggiorno, cucina, due camere da letto e due bagni.
Consegna dell’appartamento prevista per fine marzo 2026.
N.B. Le foto pubblicate sono foto campione di un appartamento già venduto
Caratteristiche principali
Codice:
V000036
Città:
Auronzo di Cadore (Villapiccola)
Categoria:
Appartamento
Locali:
5
Mq:
104
Anno:
1980
Classe energetica:
In fase di valutazione
Stato Immobile:
Nuovo
Grado:
Signorile
Posizione:
Montagna
Panorama:
Vista Monti
Orientamento:
Nord Ovest Sud
Lati Liberi:
3
Arredi:
Non Arredato
Tipo Cucina:
Abitabile
Riscaldamento:
Autonomo
Tipo Riscaldam.:
Caldaia
Tipo Impianto:
Radiatori
Fonte Energetica:
GPL
Acqua Calda:
Autonoma
Infissi:
PVC Triplo Vetro
Serramenti:
Nuovo
Persiana:
Oscurante Legno
Isolamento:
Presente
Isolamento termico:
Cappotto esterno
Accessori
Canna Fumaria
Mappa
Via Unione, 10 - Auronzo di Cadore (BL)
Richiedi informazioni
Invia
Cookie preference